Terug naar homepage

Appartement 12

Onder
optie

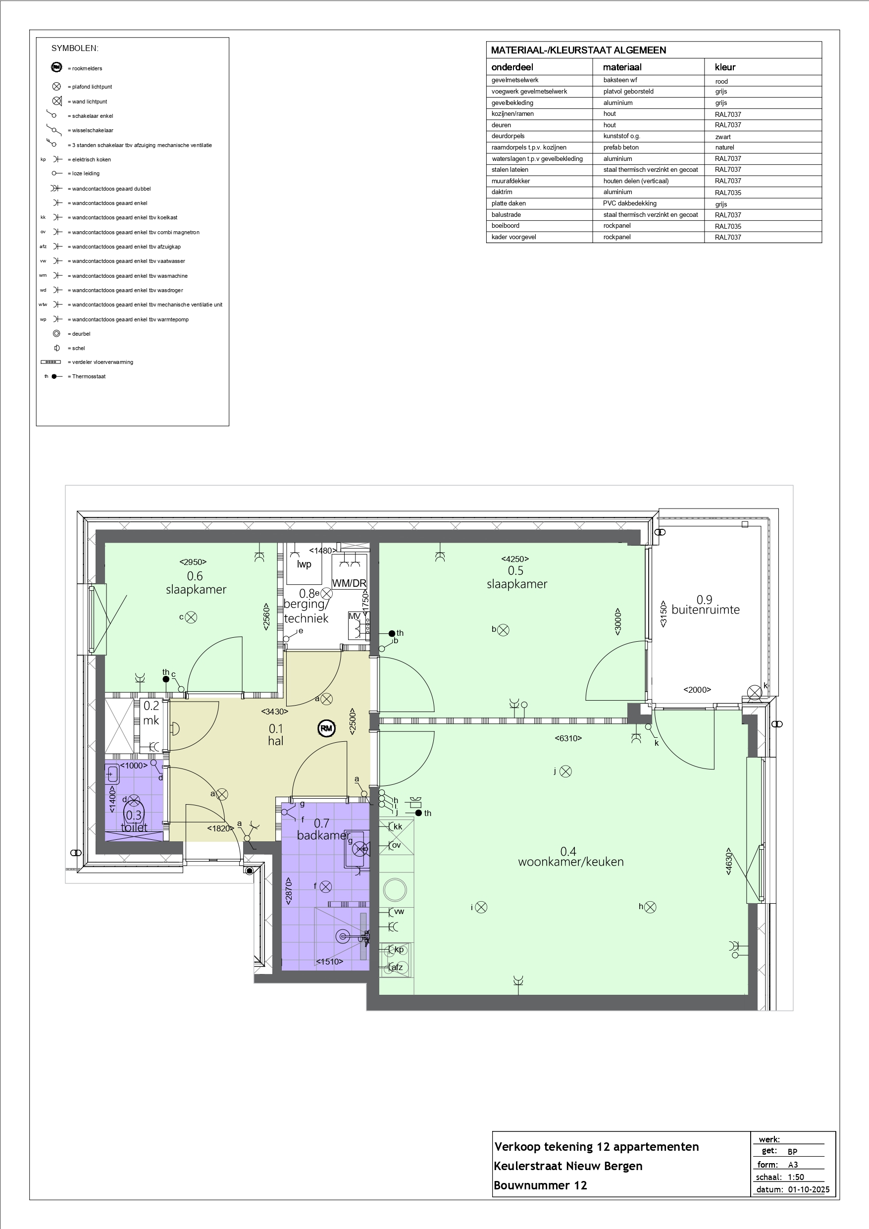
Dit schitterende hoekappartement op de tweede verdieping is ca. 72 m² groot. Door de ruime woonkamer met open keuken is er alle ruimte voor een eettafel en royale zithoek. Door de raampartij komt veel natuurlijk licht binnen. Tevens is het appartement voorzien van een buitenruimte van ca. 6 m².

Kenmerken

  • Woonoppervlakte ca. 72 m²
  • Ruime open woonkamer met open keuken  
  • 2 slaapkamers van ca. 13 m² en 7,5 m²
  • Separaat toilet
  • Badkamer met wastafel en inloopdouche
  • Buitenruimte van ca. 6 m²
  • Vloerverwarming
  • Energiezuinig A+++
  • Separate berging in het souterrain
  • VON prijs:
    € 319.500
  • Woonoppervlakte:
    72 m²
  • Buitenruimte:
    6 m²
  • Status:
    Beschikbaar

Maak uw interesse in dit appartement kenbaar door het invullen van onderstaand formulier en wij nemen zsm contact met u op

Een ontwikkeling van:

BCM Vastgoed Bergen B.V.
De Groote Heeze 58
6598 AV Heijen

 

Aannemersbedrijf P. Kaal BV
Hulsbroek 15
6562 JG Groesbeek

Voor verkoopinformatie:

Mosaïque 6-A
5854 AZ Bergen
Copyright © 2025-2026 Keulerstaete